register | confirm account | forgot password
Anu Khullar - RE/MAX River City
282 Calgary Trail NW, Edmonton, Alberta
P: 780-439-7000
F: 866-293-5424
Email

Thanks for viewing this Preferred Property below. If you have any questions or would like to schedule a viewing, please feel free to call our office at 780-701-2626 and ask for Anu Khullar or John Carter. Toll free is 1-877-417-2626 or email by clicking on the envelope logo on the left of the photos on the listing.

Courtesy of RE/MAX Vision Realty.
Data was last updated 2025-06-25 at 20:18:11 GMT
Price data not available

5211 50 Street   Drayton Valley, Alberta

MLS®: E4448777
URL:    
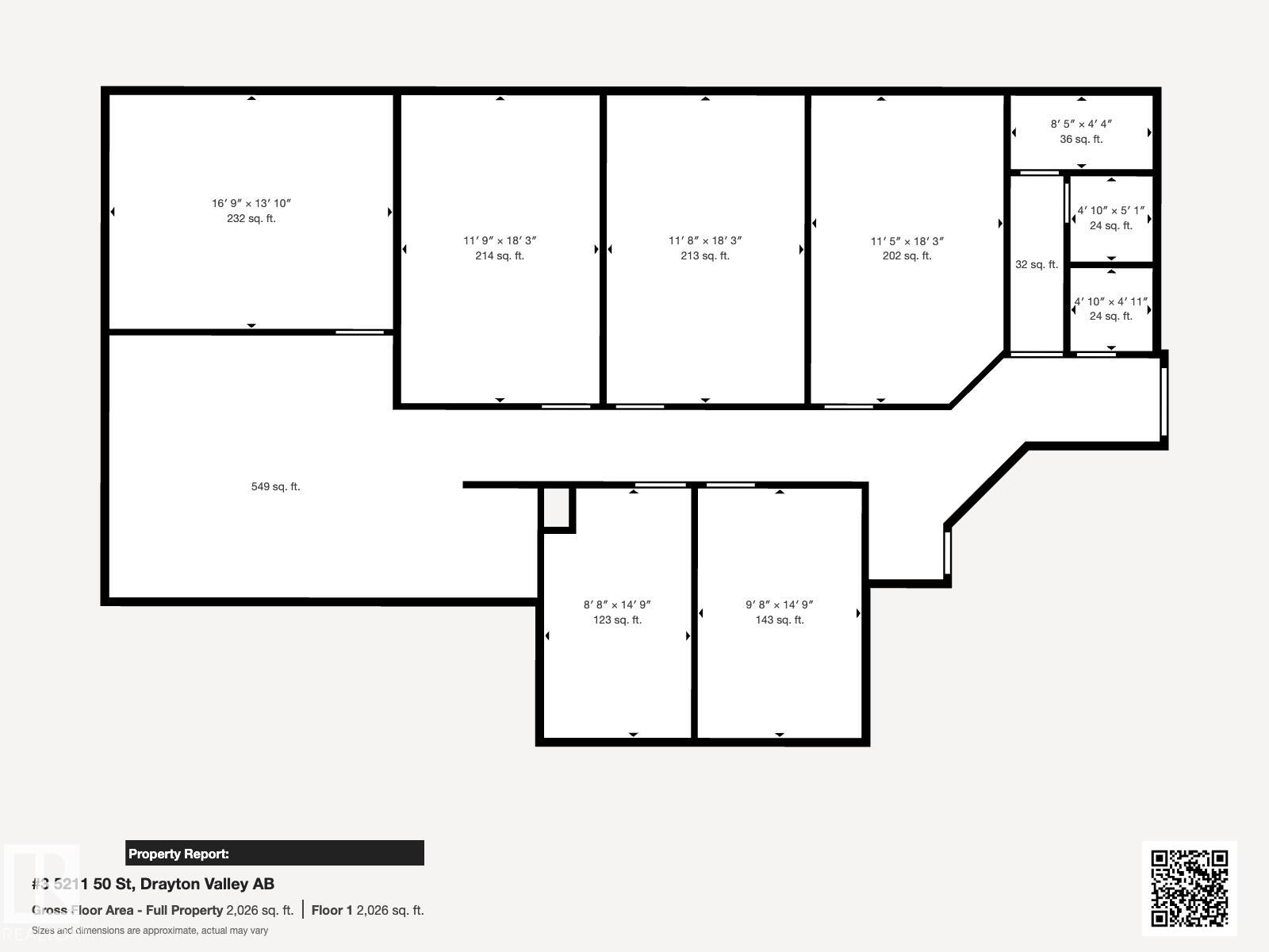
Prime 2,034 Sq Ft Office Space Available on 50th Street ? Amazing Exposure & Quick Possession!  Looking for the perfect office space in a high-traffic, high-visibility location? Look no further! This 2,034 sq ft professional space offers everything your business needs and more.  Property Highlights: 6 large private offices. Spacious reception area. Kitchen/staff break area. Plenty of parking for staff and visitors. Excellent exposure on busy 50th Street. Quick possession available. This flexible layout is ideal for medical, legal, consulting, or any professional office use. Located in a well-maintained commercial building with high visibility, this space offers both convenience and functionality.  Lease Details: $12.00 per sq ft + Triple Net. Gross lease option considered by landlord. Additional 1,350 sq ft adjacent space also available ? combine for over 3,300 sq ft if needed!
Prime 2,034 Sq Ft Office Space Available on 50th Street ? Amazing Exposure & Quick Possession! Looking for the perfect office space in a high-traffic, high-visibility location? Look no further! This 2,034 sq ft professional space offers everything your business needs and more. Property Highlights: 6 large private offices. Spacious reception area. Kitchen/staff break area. Plenty of parking for staff and visitors. Excellent exposure on busy 50th Street. Quick possession available. This flexible layout is ideal for medical, legal, consulting, or any professional office use. Located in a well-maintained commercial building with high visibility, this space offers both convenience and functionality. Lease Details: $12.00 per sq ft + Triple Net. Gross lease option considered by landlord. Additional 1,350 sq ft adjacent space also available ? combine for over 3,300 sq ft if needed!

Listing Information

Prop. Type:
Commercial Lease
Status:
Active
City:
Drayton Valley
MLS® Number:
E4448777
Area:
Edmonton
Province:
Alberta

General Information

Year Built:
1978

VIP-Only Information

Sign-Up or Log-in to view full listing details:
Sign-Up / Log In
This property is listed by RE/MAX Vision Realty and provided here courtesy of Anu Khullar. For more information or to schedule a viewing please contact Anu Khullar.
Anu Khullar
RE/MAX River City
Phone: 780-439-7000
Inquire Via Email
Data is deemed reliable but is not guaranteed accurate by the REALTORS® Association of Edmonton.
iPhone MLS® Search
Button advertising your iPhone site
MLS® on your iPhone
MLS® Search Button
Button advertising your MLS® Search page
Map-based MLS® Search
Recent Blog Entries
Displays summaries of most recent blog items
Recent Blog Entries
Canada's Mortgage Rules Tightening - Jul 4, 2012

Effective July 9, 2012, the rules for government-backed insured mortgages will tighten in ...

Ice on Whyte festival - Jan. 12-22, 2012 - Jan 9, 2012

Join dozens of ice carvers as they descend on Edmonton this January for a sparkling tribute to the ...

The hot real estate topics for holiday parties 2012 - Nov 30, 2011

Want to be the one in the know at this year's holiday parties?  Well here are our hot topics with ...

November 2011 - Preferred Newsletter - Nov 30, 2011

How is your Christmas Shopping coming along? Still time to buy a new home for the best present ...

October 2011 - Preferred Newsletter - Nov 11, 2011

Ready for winter?Still hard to believe that winter and Christmas are right around the corner with ...

Data last Updated: 2025-06-25 at 20:18:11 GMT America/Edmonton
This site's content is the responsibility of Anu Khullar, licensed REALTOR® in the Province of Alberta.
The trademarks REALTOR®, REALTORS®, and the REALTOR® logo are controlled by The Canadian Real Estate Association (CREA) and identify real estate professionals who are members of CREA. Used under license.
The trademarks MLS®, Multiple Listing Service®, and the associated logos are owned by The Canadian Real Estate Association (CREA) and identify the quality of services provided by real estate professionals who are members of CREA. Used under license.

© 2025, All Rights Reserved | Privacy Policy | Mobile Site | REALTOR® Websites by RealPageMaker