register | confirm account | forgot password
Anu Khullar - RE/MAX River City
282 Calgary Trail NW, Edmonton, Alberta
P: 780-439-7000
F: 866-293-5424
Email

Thanks for viewing this Preferred Property below. If you have any questions or would like to schedule a viewing, please feel free to call our office at 780-701-2626 and ask for Anu Khullar or John Carter. Toll free is 1-877-417-2626 or email by clicking on the envelope logo on the left of the photos on the listing.

Courtesy of Century 21 Masters.
Data was last updated 2025-06-25 at 20:18:11 GMT
$224,000

4221 MAIN Street   Ashmont, Alberta

MLS®: E4429016
URL:    
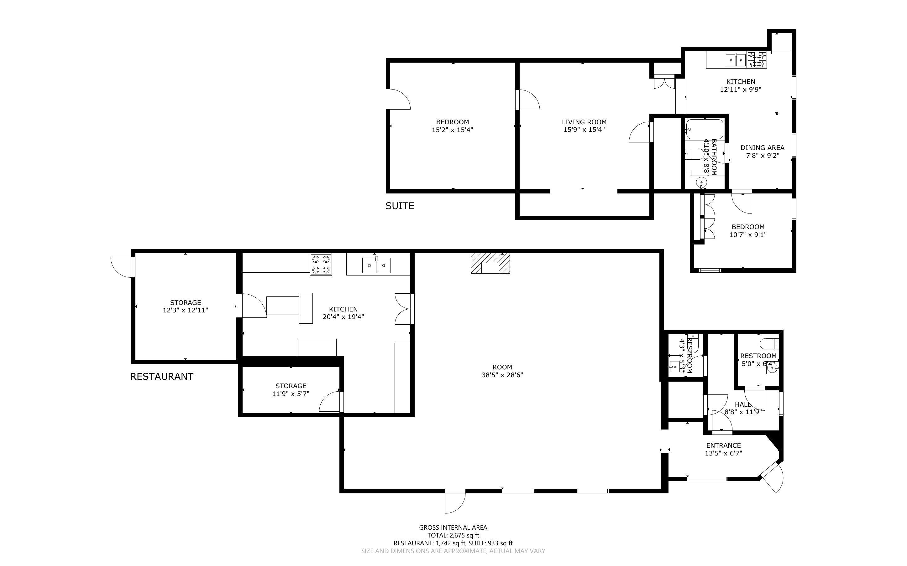
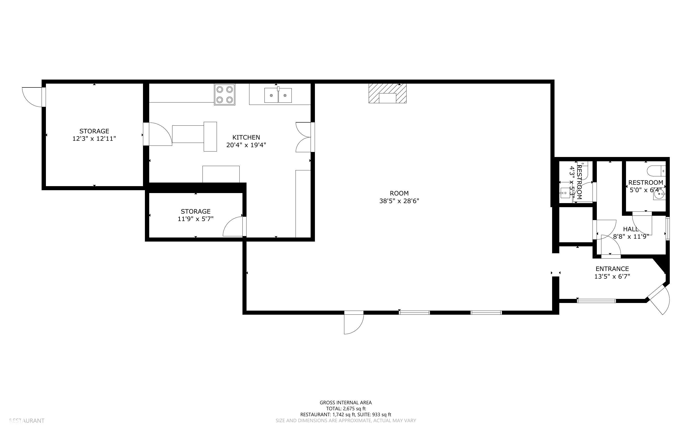
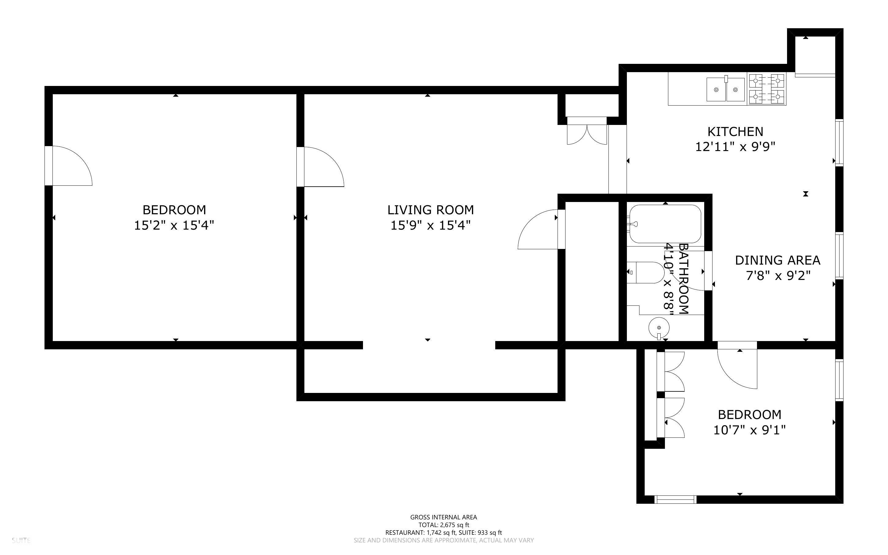
This much-loved dining spot is a go-to for full-time and seasonal residents, offering incredible business potential! Ashmont, just off Highway 28 on the way to Bonnyville and Cold Lake, fills a major gap in restaurant stops between Smoky Lake and Bonnyville. With highway signage and marketing, you can attract travelers looking for a great place to eat. The County of St. Paul has over 6,000 residents and a trading area of 35,000, with a diverse economy in agriculture, manufacturing, oil, gas, and tourism. Ashmont, known as "The Heart of Lake Country," is surrounded by multiple lakes, making it a prime destination. The County of St. Paul is open for business and eager to support new ventures! With major projects coming just northeast of Ashmont, investing here is a smart choice, and the local community is excited to support businesses. See you at The Den!
This much-loved dining spot is a go-to for full-time and seasonal residents, offering incredible business potential! Ashmont, just off Highway 28 on the way to Bonnyville and Cold Lake, fills a major gap in restaurant stops between Smoky Lake and Bonnyville. With highway signage and marketing, you can attract travelers looking for a great place to eat. The County of St. Paul has over 6,000 residents and a trading area of 35,000, with a diverse economy in agriculture, manufacturing, oil, gas, and tourism. Ashmont, known as "The Heart of Lake Country," is surrounded by multiple lakes, making it a prime destination. The County of St. Paul is open for business and eager to support new ventures! With major projects coming just northeast of Ashmont, investing here is a smart choice, and the local community is excited to support businesses. See you at The Den!

Listing Information

Prop. Type:
Commercial Sale
Status:
Active
City:
Ashmont
MLS® Number:
E4429016
Area:
Edmonton
Province:
Alberta
Listing Price:
$224,000

General Information

Year Built:
1930

VIP-Only Information

Sign-Up or Log-in to view full listing details:
Sign-Up / Log In
This property is listed by Century 21 Masters and provided here courtesy of Anu Khullar. For more information or to schedule a viewing please contact Anu Khullar.
Anu Khullar
RE/MAX River City
Phone: 780-439-7000
Inquire Via Email
Data is deemed reliable but is not guaranteed accurate by the REALTORS® Association of Edmonton.
iPhone MLS® Search
Button advertising your iPhone site
MLS® on your iPhone
MLS® Search Button
Button advertising your MLS® Search page
Map-based MLS® Search
Recent Blog Entries
Displays summaries of most recent blog items
Recent Blog Entries
Canada's Mortgage Rules Tightening - Jul 4, 2012

Effective July 9, 2012, the rules for government-backed insured mortgages will tighten in ...

Ice on Whyte festival - Jan. 12-22, 2012 - Jan 9, 2012

Join dozens of ice carvers as they descend on Edmonton this January for a sparkling tribute to the ...

The hot real estate topics for holiday parties 2012 - Nov 30, 2011

Want to be the one in the know at this year's holiday parties?  Well here are our hot topics with ...

November 2011 - Preferred Newsletter - Nov 30, 2011

How is your Christmas Shopping coming along? Still time to buy a new home for the best present ...

October 2011 - Preferred Newsletter - Nov 11, 2011

Ready for winter?Still hard to believe that winter and Christmas are right around the corner with ...

Data last Updated: 2025-06-25 at 20:18:11 GMT America/Edmonton
This site's content is the responsibility of Anu Khullar, licensed REALTOR® in the Province of Alberta.
The trademarks REALTOR®, REALTORS®, and the REALTOR® logo are controlled by The Canadian Real Estate Association (CREA) and identify real estate professionals who are members of CREA. Used under license.
The trademarks MLS®, Multiple Listing Service®, and the associated logos are owned by The Canadian Real Estate Association (CREA) and identify the quality of services provided by real estate professionals who are members of CREA. Used under license.

© 2025, All Rights Reserved | Privacy Policy | Mobile Site | REALTOR® Websites by RealPageMaker